Brandschutzsanierung und zus. Parkplätze
Projektbeschreibung
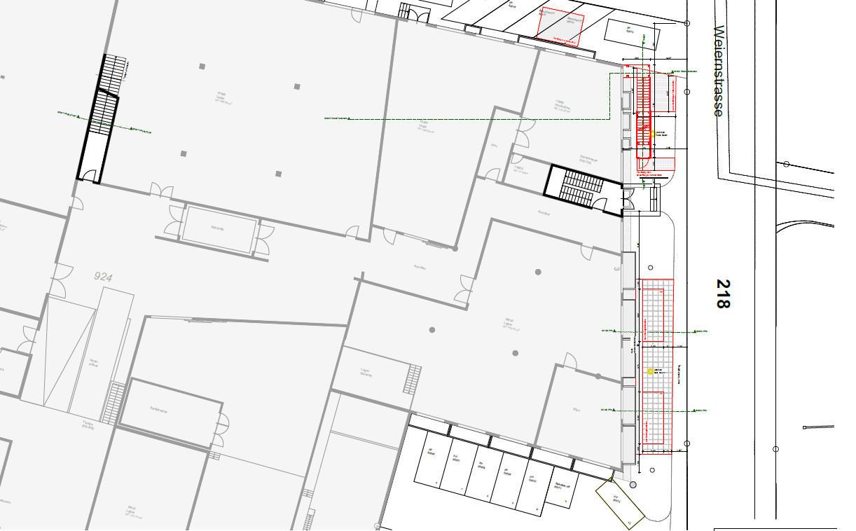
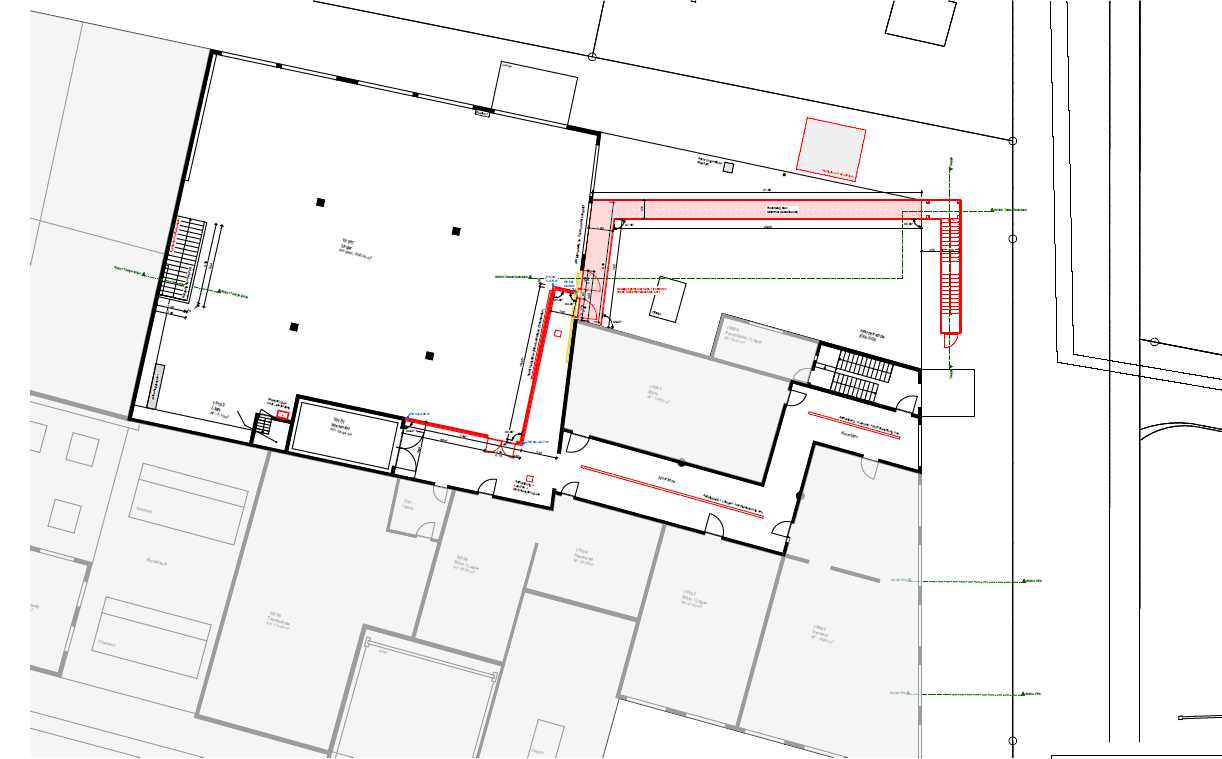
Die sanierte Gewerbefläche umfasst eine helle, grosszügige Halle im 1. Obergeschoss, ideal für Produktion, Lager oder Handwerk. Hohe Decken und ein bestehender Fahrzeugaufzug sorgen für flexible Nutzung und eine einfache Erschliessung.
Im Aussenbereich entstehen zusätzliche Parkplätze. Zudem wird ein neuer Fluchtweg realisiert: Mit Hilfe einer Treppe führt dieser vom 1. Obergeschoss über das Flachdach sicher in den Aussenbereich des Erdgeschosses.
projekt
Sanierung
standort
Aadorf, TG
jahr
2025
status
im Bau
grösse
560m2


Vorher


Nachher





